At XBIM, we provide high-quality BIM Shop Drawings created directly from accurate 3D models to support clear, efficient, and error-free construction. Our drawings are fully coordinated across all disciplines—architecture, structure, and MEPF—ensuring that every detail is correct before work begins on site.
With BIM-based shop drawings, contractors gain precise measurements, clear installation sequences, and clash-free layouts, helping reduce rework, save time, and improve construction quality.
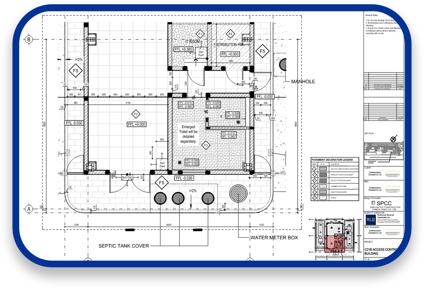
Plans, sections, elevations, door/window details, finishing schedules.
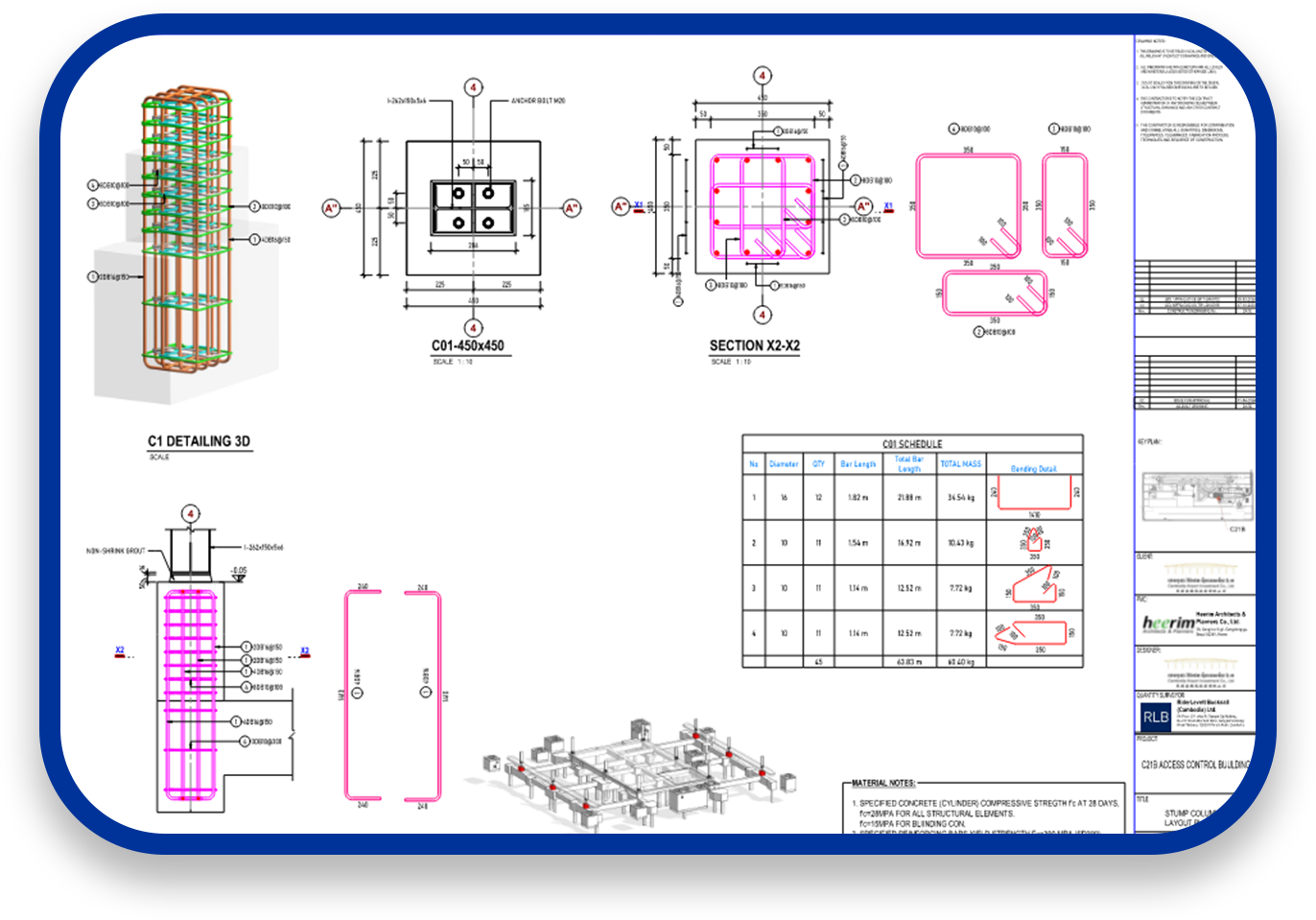
Rebar detailing, concrete formwork, steel connection details.
HVAC ducting, electrical layouts, plumbing systems, drainage, fire protection piping.
Accurate quantities extracted directly from BIM models to support BOQs.
Drawings generated from fully coordinated BIM models to ensure smooth installation.
Updated drawings based on real site installation for final handover.
XBIM is committed to helping clients save money & time, Reduce risk and improve quality through better access to real-time data coupled with more effective communication & collaboration.


